
30th-31st May 2026 - time to get your dream home started!
GET TWO FREE TICKETS HERECharlie and Helen and their friends and future neighbours, Craig and LB, fell in love with a 0.28 acre Herefordshire plot. The site included an old two-storey cottage with two outbuildings in a similar condition, and an extremely overgrown garden.
Driven by their individual self build visions, the two couples bought the plot and then employed Oakwrights to secure planning permission for two detached oak frame cottages.
Follow the story: Building an Oak Frame Home
The site was subsequently divided in two: Plot 1, owned by Charlie and Helen; and Plot 2, which is owned by Craig and LB. The design of Charlie and Helen’s cottage replaces the original cottage on the site, while Craig and LB’s home has been conceived in a complementary style, while reflecting the different orientation of their particular plot. Here, we look at how they began their design and build journeys.
We love the oak for what it brings to the house; it’s tactile, has character and it’s beautiful. There aren’t many new build oak frame properties a young couple can buy!
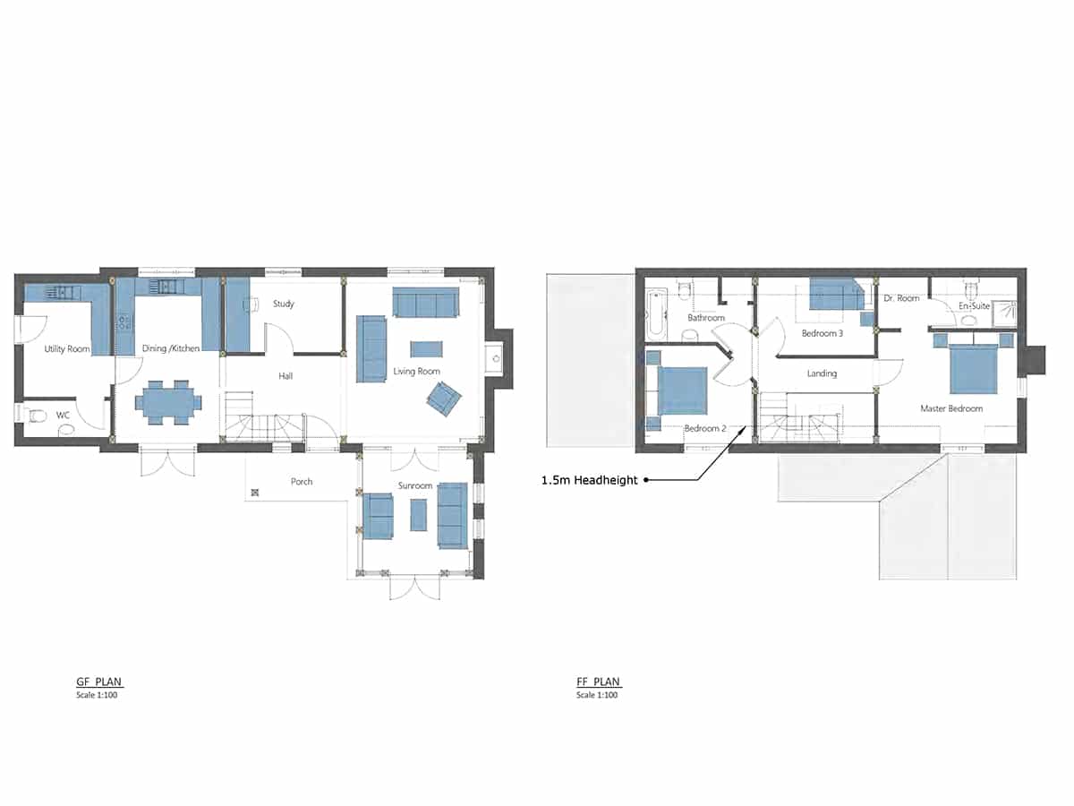
We based ours on the floorplan of Church cottage; a three-bedroom oak home from Oakwrights’ The Cottage range. Working with their frame designer Emma Irvine, we opted for an aisle-style frame, which runs through the centre of our cottage, adding structure to each room.
We wanted our home to benefit from a full-height glazed gable, while creating large, open-plan living spaces. So, we removed the internal dividing walls, allowing natural light to flood through the glazing across the ground floor and up into the first floor landing. We also incorporated a dressing room into our design to create an additional room upstairs.

To drive our self build plans forwards, Steve Laws, Oakwrights’ encapsulation design manager, took Emma’s 3D model design and added all the components required to manufacture our insulated WrightWall and WrightRoof encapsulation panels. Our joinery and skylights were later pre-installed in the dry in Oakwrights’ workshops, creating a weathertight structure faster while speeding up the on-site construction process.
If you have the opportunity to build your own home then stick at it, as it will all be worth it in the long run! Know your numbers and use a mortgage adviser, as the self build mortgage application is a lengthy tick box process.
We’ve gone down the DIY route as much as possible, though this has tested us at times. It feels incredible to take a step back when each chapter of the build is done and think “wow, we’ve done that,” which is sometimes followed with a “never again!” We love the design of our bespoke oak frame and our stone floor downstairs.
Working with Oakwrights’ senior frame designer, Julian Pilkington, we based our three-bedroom home design on Manuka cottage from The Cottage range. We opted for a post and beam-style frame. On the ground floor, this extends to the full perimeter of the rooms. On the upper storey, the structural oak trusses are visible in the two central bay frames.
We also wanted the design to meet our future needs and consider our plot. In place of a cloakroom, we included a spacious study to provide us with the option of a fourth bedroom. To enhance the sense of open-plan living, we removed the French doors separating our glazed sunroom and sitting room.
We chose to insulate our cottage with Oakwrights’ WrightWall and WrightRoof encapsulation system for an efficient and airtight home. Senior frame designer Tim Griffiths incorporated our joinery, dormer windows and skylights into the encapsulation panels. This reduced the time required on-site to erect our oak frame, so the rest of the building work could commence quickly.
Follow the story: Building an Oak Frame Home
Craig has over 15 years’ experience in the construction industry, so he’s been the boss when it comes to all things building related. I (LB) developed a real feel for how I wanted lots of elements of the inside of the house quite early on, with the help of magazines and Instagram etc. Thankfully Craig and I are on the same page 90% of the time, so he’s trusted me to deliver!
| If you would like to build a country-style cottage, view the six homes in The Cottage range, or call 01432 353 353 to arrange a video consultation where you can discuss your upcoming self build plans with one of Oakwrights’ architects. |